Продается квартира

Обзор
Стоимость
6 200 000
РемонтЕвро
БалконЛоджия
Год постройки2010
ОтоплениеИндивидуальное
Можно с питомцамиНет
Можно с детьмиДа
Можно куритьНет
СанузелСовмещенный
Вид из окнаво двор
ЗалогЕсть
Тип дома cianКирпичный
ЭлектричествоЕсть
Комнат в квартире1
Площадь, кв.м.55
Жилая площадь22
Площадь кухни, кв.м.15
Этаж8
Этажность9
Материал стен Кирпич
Тип комнатраздельные
СостояниеБез отделки
Адрес
Населенный пунктКалуга
Район городаЛенинский
Микрорайонмикрорайон Правый Берег
Улицаулица Георгия Димитрова
Номер дома12
В избранное Продается квартира

В продаже видовая 1 комнатная квартира  в активно развивающемся микрорайоне Правый берег на улице Георгия Димитрова дом 12.

Квартира расположена на 8 этаже 9ти этажного кирпичного дома 2010 года постройки. Потрясающий вид на водохранилище и бор.

Закрытый паркинг. Ухоженный двор, большое парковочное пространство. 

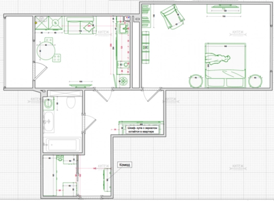
Метраж квартиры 55 кв.м.! Большая комната в 21.4 квадрат и кухня 15 квадратных метра.

В квартире индивидуальное отопление! Застеклённая лоджия, не угловая.

Полностью готова под чистовую отделку/ Квартира готовилась под новый ремонт, выполнены следующие работы:  стены и потолки подготовлены под покраску! (грунтовка,штукатурка, шлифовка стен), выравнен и залит пол (готов под укладку ламината, плитки), новая проводка с большим количеством розеток
сделаны выводы под кондиционер, установлена новая входная дверь, заведён интернет кабель и домофон, новый газовый котёл.

В квартире также остается: холодильник, стиральная машина Bosch, новый кондиционер, диван раскладной, шкаф- купе на 3 секции с зеркалами, ванна из чугуна 80*180

Рядом магазин, школа практически во дворе, детский сад через двор. Полностью развитый микрорайон. 10 минут на машине до Сквера Мира, 

Расположение

Важно! На карте не всегда указано точное местоположение. Более точную информацию можно узнать у менеджера, разместившего объект