3-к. 85,2 м², 6/18 эт. Болдина

Обзор
Стоимость
8 946 000
Название ЖКБолдина 12
Стадия строительствадом построен, но не сдан
Год постройки2025
Площадь, кв.м.85.2
Площадь кухни, кв.м.12.9
Жилая площадь47.3
Этаж6
Этажность18
Комнат в квартире3
Материал стенкирпично-монолитный
ОтоплениеКрышная котельная
Тип сделки новостройкипереуступка
Статус Недвижимости АвитоКвартира
Тип продажи ЦианДоговор уступки права требования
Право собственностиПосредник
Тип парковкиПодземная
РемонтТребует ремонта
Способ связи avitoПо телефону и в сообщениях
Узаконена ли планировкаЕсть
Тип дома cianМонолитный
Адрес
Населенный пунктКалуга
Район городаЛенинский
МикрорайонСпартак
Улицаулица Болдина
Номер дома12
В избранное 3-к. 85,2 м², 6/18 эт. Болдина

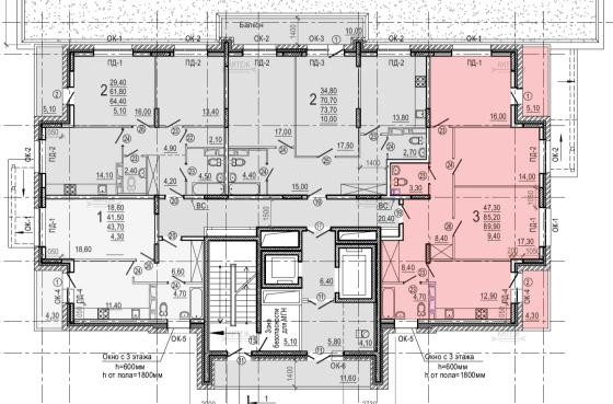
Трёхкомнатная квартира с двумя лоджиями и двумя санузлами.

Новый восемнадцатиэтажный жилой дом всего на 58 квартир возводится в десяти минутах ходьбы от центра в живописном и экологически чистом месте города Калуга.

Наличие автономной крышной котельной значительно сэкономит средства, затраченные на коммунальные услуги, и обеспечит уют и тепло в каждой квартире, а подземная парковка решит вопрос безопасности личного транспорта и дефицита парковочных мест у дома.

Надежность и качество дома обеспечат монолитно-кирпичное строительство и экологически чистые материалы.

В продаже 3-комн. квартира 85,2 кв.м. (общая площадь без учёта лоджий) с изолированными комнатами 17,3 + 16 + 14 кв.м. и кухней 12,9 кв.м. Два санузла. Вместительная прихожая с местом под шкаф-купе. Две лоджии 5,1 + 4,3 кв.м. Высота потолков 3 м.

Площадь лоджий в подарок.

Возможность приобрести машино-место на подземной парковке.

Полная безопасность и защищённость покупателя: продажа через эскроу-счета.

Вблизи жилого дома расположены поликлиника, магазины, рынок, аптеки, школы, детские сады, детская спортивная школа олимпийского резерва "Юность".

Расположение

Важно! На карте не всегда указано точное местоположение. Более точную информацию можно узнать у менеджера, разместившего объект